Livele Garden.S あきる野上代継第2 新築 全1号棟 1号棟

3,280万円

東京都あきる野市上代継307-1

五日市線「秋川」駅徒歩16分

価格
3,280万円
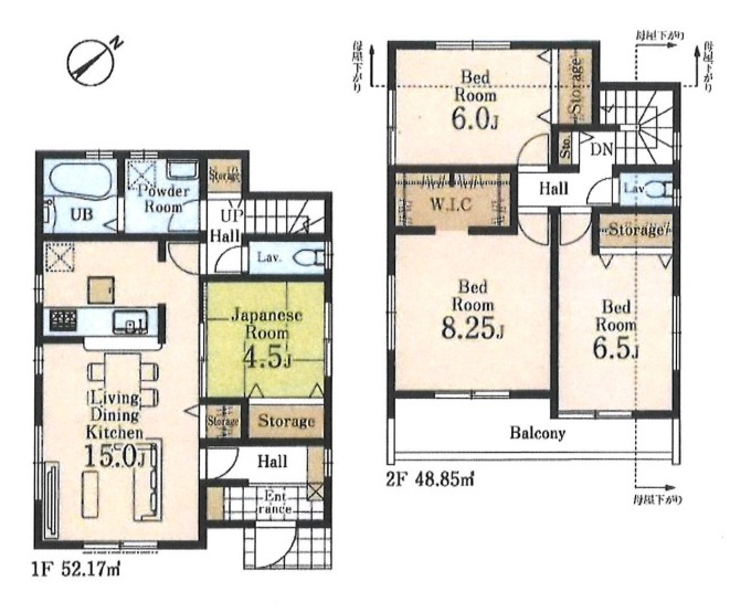
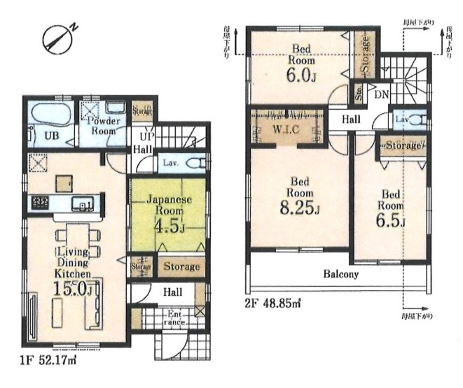
間取り
4LDK
土地面積
137.83㎡
所在地
東京都あきる野市上代継307-1
交通

五日市線秋川」駅 徒歩16分

建物面積
101.02㎡
築年月
2026年3月(予定)

物件の特徴

  • バストイレ別

  • TVモニタ付きインターホン

  • 浴室乾燥機

セールスポイント

ニーズのある南東向きの物件で、快適な生活をおくることができます。快適な空間に欠かせない2面採光で、健やかな日々をお過ごしください。住んだことの無い場所で不動産をお探しなら、当社にお任せください。地元を知り尽くしたスタッフがあなたのサポートを致します。ぜひご検討ください。

ポイント

設計住宅性能評価付 駐車2台可 リビングの隣和室 浄水器 クロゼット

担当者のコメント

橋本 友章

こちらの物件は南東向きの物件です。多くの方から高いニーズのある、内装もピカピカの新築戸建ての物件です。機能的で使いやすいシステムキッチン付きなので、お料理を楽しめます。あきる野市エリアや五日市線秋川付近で、お客様のご希望条件に合った一戸建てをご紹介します。まずはお問い合わせください。

基本情報

販売戸数
-
総戸数
-
間取り / 詳細
4LDK
LDK 15.0帖 1室/和室 4.5帖 1室/洋室 8.2帖 1室/洋室 6.5帖 1室/洋室 6.0帖 1室
向き
南東
建物面積(坪数)
101.02㎡(30.55坪)
土地面積(坪数)
137.83㎡(41.69坪)
建ぺい率 /
容積率
40%/80%
築年月
2026年3月(予定)
駐車場 / 月額
有 / -
土地権利
所有権
土地
(敷金 / 保証金)
- / -
建物構造
木造 / 2階建
傾斜地部分面積
-
路地状敷地
-
私道負担面積
86.00㎡
セットバック
要 13.00㎡
高圧線下面積
-
施工会社
-
用途地域
第一種低層住居専用
地目 / 地勢
宅地 / -
接道状況
一方(南東 4.0m)
国土法届出要否
不要
都市計画
市街化区域
総区画数 /
販売区画数
-/-
現況
未完成
その他
法令上の制限
景観法/航空法/高度地区/日影制限有
取引態様
仲介
引渡し
2026年4月上旬
取引条件の
有効期限
2026年03月29日

設備条件

設備条件
  • 建設住宅性能評価書付 / プロパンガス / 公営水道 / 公共下水 / 24時間換気システム / 電気有 / 駐車2台可 / システムキッチン / バス・トイレ別 / 追焚機能浴室 / 浴室乾燥機 / 温水洗浄便座 / トイレ2ヶ所 / 床下収納 / ウォークインクロゼット / 収納豊富 / TVモニタ付インターホン / 複層ガラス
設備(その他)
    -

その他

物件番号
101310706
管理コード
-
建築確認番号
第25UDI1W建09496号
情報更新日
2026年03月15日
次回更新予定日
2026年03月29日
取扱会社
  • 株式会社あきる野ミリオンホーム!!!
  • 東京都あきる野市野辺599-1 
  • TEL:042-595-5076
  • 東京都知事 (1) 第106229号
備考
※セットアップ面積・持分/13㎡×1/1
※網戸・照明・濡縁・カーテンレール・防水パン・カーポートはオプションとなります。
※宅地内に電線および支線が入る場合があります。
※司法書士は売主指定となります。
※図面と現況に相違がある場合は現況優先とします。
※全棟が長期優良住宅対象物件です。

周辺施設

  • あきる野市立西秋留小学校の画像

    小学校

    あきる野市立西秋留小学校

    134m(2分)

  • 西秋留保育園の画像

    保育園

    西秋留保育園

    298m(4分)

  • スーパーオザム代継店の画像

    スーパー

    スーパーオザム代継店

    400m(5分)

  • クリエイトSD(エス・ディー) あきる野渕上店の画像

    ドラッグストア

    クリエイトSD(エス・ディー) あきる野渕上店

    404m(6分)

  • DCMあきる野店の画像

    ホームセンター

    DCMあきる野店

    553m(7分)

  • ファミリーマート あきる野下代継店の画像

    コンビニエンスストア

    ファミリーマート あきる野下代継店

    591m(8分)

  • ドラッグセイムスあきる野引田店の画像

    ドラッグストア

    ドラッグセイムスあきる野引田店

    1096m(14分)

  • あきる野市立西中学校の画像

    中学校

    あきる野市立西中学校

    1121m(15分)

  • 秋川文化幼稚園の画像

    幼稚園

    秋川文化幼稚園

    1148m(15分)

  • あきる野郵便局の画像

    郵便局

    あきる野郵便局

    1519m(19分)

  • あきるのプレイスの画像

    ショッピングセンター

    あきるのプレイス

    1639m(21分)

  • サンドラッグ 秋川店の画像

    ドラッグストア

    サンドラッグ 秋川店

    1640m(21分)

  • 公立阿伎留医療センターの画像

    総合病院

    公立阿伎留医療センター

    1675m(21分)

  • あきる野市中央図書館の画像

    図書館

    あきる野市中央図書館

    1709m(22分)

  • イオンモール日の出の画像

    ショッピングセンター

    イオンモール日の出

    2028m(26分)

支払いシミュレーション

月々の支払額
購入希望物件価格
万円
頭金
万円
金利
%
返済額(ボーナス1回分)
万円
返済期間

※ボーナスは自動で年2回分で計算されます。

近隣の物件

  1. あきる野市留原 中古戸建

    あきる野市留原

    5LDK (138.91㎡)

    1,780万円

  2. あきる野市草花 太陽光・オール電化付中古戸建

    あきる野市草花

    4LDK (91.36㎡)

    2,580万円

  3. あきる野市草花 中古戸建☆ホームエレベーター付

    あきる野市草花

    3LDK (122.34㎡)

    1,480万円

  4. あきる野市野辺 中古戸建

    あきる野市野辺

    5DK (91.20㎡)

    1,780万円

よく見られている物件

  1. あきる野市留原 中古戸建

    あきる野市留原

    5LDK (138.91㎡)

    1,780万円

  2. あきる野市草花 中古戸建☆ホームエレベーター付

    あきる野市草花

    3LDK (122.34㎡)

    1,480万円

  3. あきる野市草花 太陽光・オール電化付中古戸建

    あきる野市草花

    4LDK (91.36㎡)

    2,580万円

  4. 日の出町大久野 中古戸建

    西多摩郡日の出町大字大久野

    3LDK (130.08㎡)

    5,780万円

Livele Garden.S あきる野上代継第2 新築 全1号棟 1号棟

Livele Garden.S あきる野上代継第2 新築 全1号棟 1号棟

3,280万円

-

4LDK(101.02㎡)

お気軽にお問い合わせください

LINEからお問い合わせ 無料お問い合わせ

株式会社あきる野ミリオンホーム!!!

042-595-5076

9:00~18:00

(休:毎週水曜・第1・3木曜)